Cerise 6, Wageningen - Jeltes ten Hoor
Jeltes ten Hoor Jeltes ten Hoor

Omschrijving

Bent u op zoek naar een ruime en goed onderhouden woning in het gezellige Wageningen? Dan is dit de kans die u niet wilt missen! Dit helft van een dubbel woonhuis aan de Cerise 6 biedt alles wat u nodig heeft voor comfortabel wonen in een rustige, maar centrale locatie.

Het woonhuis is ideaal gelegen in een rustige, kindvriendelijke wijk De Boomgaarden. Het woonhuis is voorzien van 12 zonnepanelen. De woning heeft…

Lees meer

Kenmerken

  • Soort woning Eengezinswoning
  • Type woning Twee onder een kapwoning
  • Bouwjaar 2002
  • Bouwvorm Bestaande bouw
  • Woonoppervlakte ca. 140 m2
Meer kenmerken

Plattegronden

Omschrijving

Bent u op zoek naar een ruime en goed onderhouden woning in het gezellige Wageningen? Dan is dit de kans die u niet wilt missen! Dit helft van een dubbel woonhuis aan de Cerise 6 biedt alles wat u nodig heeft voor comfortabel wonen in een rustige, maar centrale locatie.

Het woonhuis is ideaal gelegen in een rustige, kindvriendelijke wijk De Boomgaarden. Het woonhuis is voorzien van 12 zonnepanelen. De woning heeft een vrijstaande stenen garage met een elektrische deur en een loopdeur evenals een vrijstaande houten tuinhuisje in de achtertuin. De achtertuin is fraai aangelegd. Het woonhuis biedt een ideale combinatie van comfort, ruimte en een fijne tuin. Met een lichte en ruime woonkamer, moderne keuken en drie slaapkamers op de eerste verdieping en twee slaapkamers op de tweede verdieping, is deze woning perfect voor een gezin.

Ligging:
De woning is gelegen in een prettige woonwijk De Boomgaarden met alle voorzieningen binnen handbereik. Supermarkten, scholen, openbaar vervoer en het gezellige centrum van Wageningen zijn op korte afstand te bereiken. Wageningen staat bekend om zijn groene omgeving en uitstekende verbindingen naar andere steden in de regio.

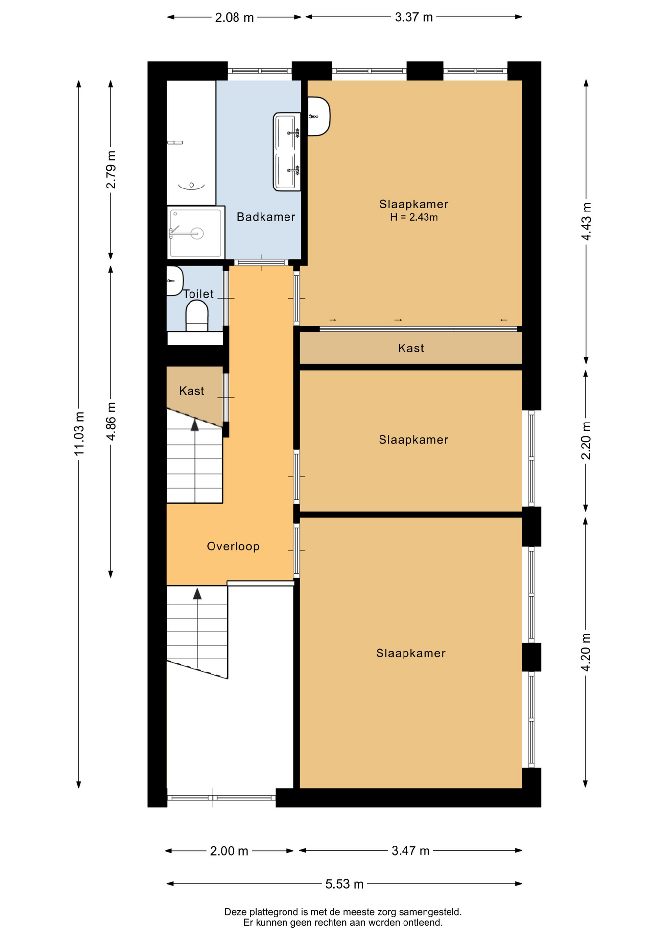
Indeling:
Entree, hal met meterkast en toiletruimte met hangend closet en hoekfontein. Vanuit de hal, met trapkast met de verdeler van de vloerverwarming, is de sfeervolle woonkamer bereikbaar. De openslaande dubbele deuren geven toegang tot de zij-ingang (zijtuin). De half open keuken bevindt zich aan de voorzijde is uitgevoerd in een lichte kleurstelling met L-vormige opstelling en voorzien van afwasmachine, close-in boiler, inductie kookplaat met afzuigkap, oven, magnetron, vriezer, koelkast en granieten aanrechtblad.

1e verdieping:
Overloop, slaapkamer met wastafel en kastenwand, badkamer met raam en voorzien van ligbad, douchecabine en dubbel wastafelmeubel, aparte toiletruimte met hangend closet en hoekfontein, trapkast met verdeler vloerverwarming voor de badkamer, slaapkamer en grote derde slaapkamer. Vide.

2e verdieping:
Overloop met ramen en opbergruimte, slaapkamer met opbergruimte; wasruimte met aansluitingen voor de wasapparatuur; slaapkamer met opstelling van de C.V. ketel en omvormer voor de zonnepanelen.

Bijzonderheden:
– Woonoppervlakte 140 m²;
– In totaal 5 royale slaapkamers;
– Perceel van maar liefst 546m²;
– Grote vrijstaande stenen garage (7,5 x 3 = 22,5m²);
– Energielabel: A, geldig tot 22 december 2030;
– Combiketel (Remeha HR 2018);
– Prettige wijk om te wonen, ruim van opzet.

Aanvaarding: in overleg.

Kenmerken

Overdracht

  • Status Verkocht
  • Vraagprijs € 795.000,- Kosten koper
  • Aanvaarding In overleg

Bouwvorm & Onderhoud

  • Soort woonhuis Twee onder een kapwoning
  • Soort bouw Bestaande bouw
  • Bouwjaar 2002
  • Soort dak Lessenaardak
  • Onderhoud binnen Goed
  • Onderhoud buiten Goed

Oppervlakten & inhoud

  • Gebruiksoppervlakte wonen ca. 140 m2
  • Externe bergruimte ca. 30m2
  • Inhoud ca. 529m3
  • Perceeloppervlakte ca. 546m2

Indeling

  • Aantal slaapkamers 5
  • Aantal badkamers 1 badkamer
  • Badkamervoorzieningen Ligbad, douche, dubbele wastafel, wastafelmeubel, vloerverwarming
  • Aantal woonlagen 3 woonlagen
  • Voorzieningen Mechanische ventilatie, glasvezel kabel, zonnepanelen

Energie & Installatie

  • Energielabel A
  • Isolatie Dakisolatie, muurisolatie, vloerisolatie, dubbel glas
  • Verwarming Cv ketel
  • Warm water Cv ketel, elektrische boiler eigendom
  • C.v.-ketel type Gas
  • C.v.-ketel bouwjaar 2018
  • Eigendom Eigendom

Tuin & Buitenruimte

  • Ligging Aan rustige weg, in woonwijk
  • Hoofdtuin Achtertuin
  • Oppervlakte hoofdtuin ca. 330m2
  • Ligging hoofdtuin Noord
  • Achterom 1
  • Kwaliteit tuin Fraai aangelegd

Bergruimte

  • Schuur / berging Vrijstaand hout
  • Aantal schuren / bergingen 1
  • Voorzieningen Voorzien van elektra

Parkeergelegenheid

  • Parkeerfaciliteiten Openbaar parkeren, op eigen terrein
  • Garage Vrijstaand steen
Jeltes ten Hoor

Weet je wat je huidige woning waard is?

Vraag gratis en vrijblijvend een waardebepaling aan.

Waardebepaling aanvragen

Wij staan voor u klaar!

Meer weten over onze verkoopservice? Wij zijn altijd goed bereikbaar!

Contact opnemen logo-clear