Hollandseweg 22, Wageningen - Jeltes ten Hoor
Jeltes ten Hoor Jeltes ten Hoor

Omschrijving

Uitstekend onderhouden royale 5-kamer maisonnette met balkon en inpandige berging in de onderbouw. Gelegen in een rustige en groene woonomgeving op korte afstand van diverse voorzieningen zoals scholen, winkels, supermarkten, Campus van de WUR en uitvalswegen A12 en A50.

Het appartementencomplex is gelegen in een kindvriendelijke en groene omgeving met in de nabijheid een speelplaats.
Deze woning ligt op de…

Lees meer

Kenmerken

  • Bouwjaar 1963
  • Bouwvorm Bestaande bouw
  • Woonoppervlakte ca. 84 m2
Meer kenmerken

Plattegronden

Omschrijving

Uitstekend onderhouden royale 5-kamer maisonnette met balkon en inpandige berging in de onderbouw. Gelegen in een rustige en groene woonomgeving op korte afstand van diverse voorzieningen zoals scholen, winkels, supermarkten, Campus van de WUR en uitvalswegen A12 en A50.

Het appartementencomplex is gelegen in een kindvriendelijke en groene omgeving met in de nabijheid een speelplaats.
Deze woning ligt op de bovenste twee verdiepingen van een kleinschalig appartementengebouw. Aan de voorzijde ligt de afgesloten binnentuin. Het appartement is uitstekend onderhouden en heeft vier slaapkamers en een moderne keuken en badkamer.

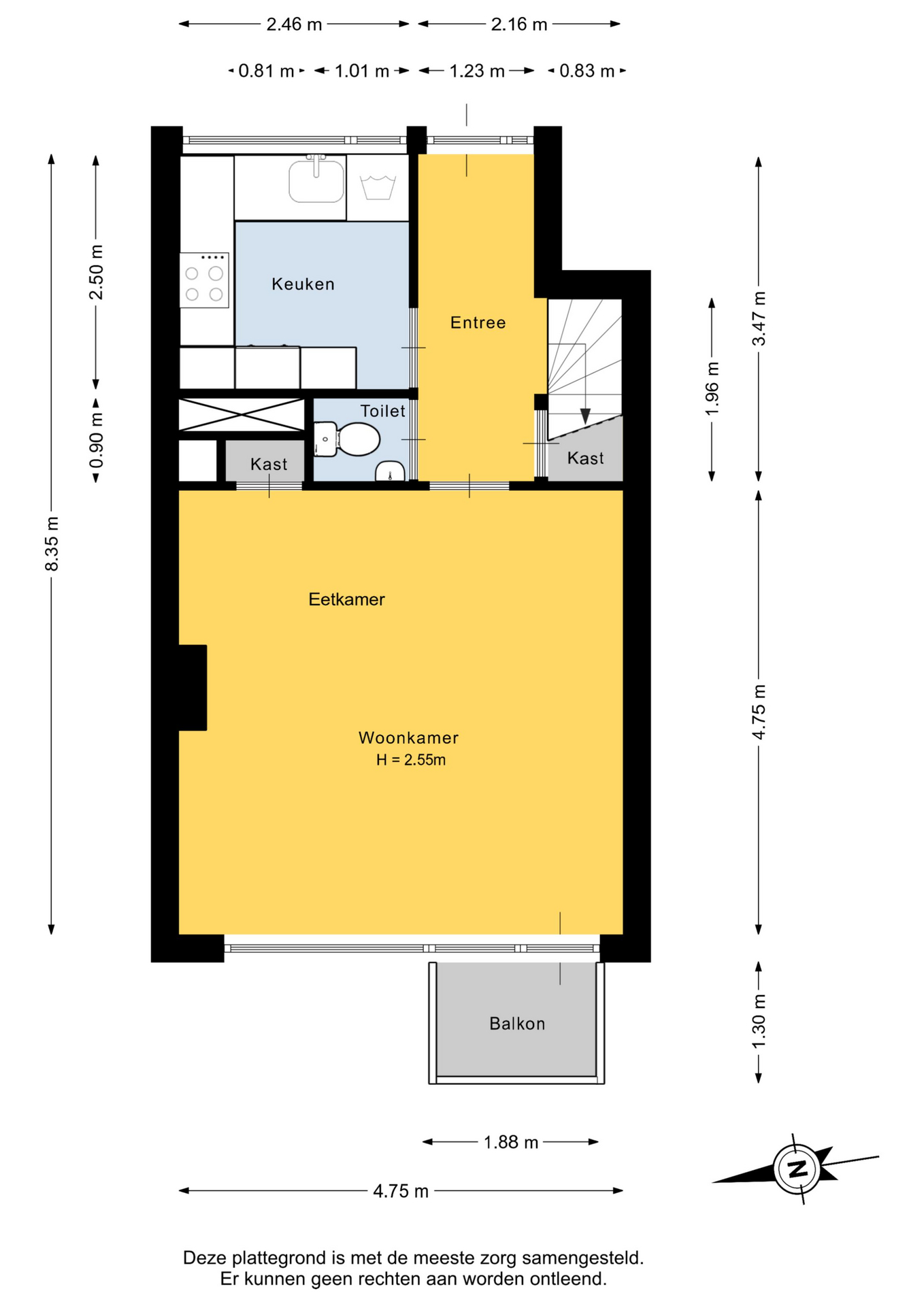
Indeling:
Woonverdieping: Entree; hal met trapopgang naar de slaapverdieping en trapkast; toiletruimte met toilet en fonteintje; dichte keuken (2025) in U-opstelling geplaatst en v.v. wasmachine aansluiting en diverse inbouwapparatuur te weten: inductiekookplaat met afzuiging, oven, koelkast en vaatwasser, kast met c.v.- ketel Intergas HR 2025; woonkamer met deur naar het balkon gelegen op het westen.

Slaapverdieping: Overloop; slaapkamer I; slaapkamer II met inbouwkast; slaapkamer III; slaapkamer IV; moderne badkamer tot plafond betegeld en v.v. wastafelmeubel en inloopdouche.

Bijzonderheden:
– Royale 5-kamer maisonnette;
– Balkon gelegen op het westen;
– C.V.-ketel uit 2025;
– Meterkast en elektra in de keuken vernieuwd in 2025;
– Gehele appartement voorzien van laminaat vloer;
– Afgewerkt in lichte kleur stelling;
– Centrale ligging nabij diverse voorzieningen;
– Gezonde en actieve VvE;
– Servicekosten € 135,82 per maand;
– Energielabel B geldig tot 2036.

Kenmerken

Overdracht

  • Status Beschikbaar
  • Vraagprijs € 325.000,- Kosten koper
  • Aanvaarding In overleg

Bouwvorm & Onderhoud

  • Soort bouw Bestaande bouw
  • Bouwjaar 1963
  • Soort dak Plat dak
  • Onderhoud binnen Goed tot uitstekend
  • Onderhoud buiten Goed tot uitstekend

Oppervlakten & inhoud

  • Gebruiksoppervlakte wonen ca. 84 m2
  • Oppervlakte gebouwgebonden ca. 2m2
  • Externe bergruimte ca. 7m2
  • Inhoud ca. 261m3

Indeling

  • Aantal slaapkamers 4
  • Aantal badkamers 1 badkamer
  • Badkamervoorzieningen Douche, wastafel
  • Aantal woonlagen 2 woonlagen
  • Voorzieningen Mechanische ventilatie

Energie & Installatie

  • Energielabel B
  • Isolatie Dakisolatie, muurisolatie, dubbel glas
  • Verwarming Cv ketel
  • Warm water Cv ketel
  • C.v.-ketel type Gas
  • C.v.-ketel bouwjaar 2025
  • Eigendom Eigendom

Tuin & Buitenruimte

  • Ligging In woonwijk

Bergruimte

  • Schuur / berging Inpandig
  • Aantal schuren / bergingen 1

Parkeergelegenheid

  • Parkeerfaciliteiten Openbaar parkeren
  • Garage Geen garage
Jeltes ten Hoor

Weet je wat je huidige woning waard is?

Vraag gratis en vrijblijvend een waardebepaling aan.

Waardebepaling aanvragen

Wij staan voor u klaar!

Meer weten over onze verkoopservice? Wij zijn altijd goed bereikbaar!

Contact opnemen logo-clear