Hooilandplein 7, Wageningen - Jeltes ten Hoor
Jeltes ten Hoor Jeltes ten Hoor

Omschrijving

Royaal en licht 4-kamer appartement (3 grote slaapkamers) met 2 royale terrassen gesitueerd op zowel het westen als het oosten.

In het hart van de geliefde en rustige woonwijk “Noordwest” gelegen 4-kamer appartement met 2 royale terrassen, eigen parkeerplaats en berging in de onderbouw. Dit royale 4-kamer appartement is keurig afgewerkt en onderhouden, gesitueerd op de begane grond en heeft aan de voorzijde uitzicht…

Lees meer

Kenmerken

  • Bouwjaar 1994
  • Bouwvorm Bestaande bouw
  • Woonoppervlakte ca. 108 m2
Meer kenmerken

Plattegronden

Omschrijving

Royaal en licht 4-kamer appartement (3 grote slaapkamers) met 2 royale terrassen gesitueerd op zowel het westen als het oosten.

In het hart van de geliefde en rustige woonwijk “Noordwest” gelegen 4-kamer appartement met 2 royale terrassen, eigen parkeerplaats en berging in de onderbouw. Dit royale 4-kamer appartement is keurig afgewerkt en onderhouden, gesitueerd op de begane grond en heeft aan de voorzijde uitzicht over een fraaie waterpartij.
Het appartementencomplex beschikt over een eigen aparte entree.
Diverse voorzieningen zoals een kleinschalig winkelcentrum en scholen op slechts 50 meter van het appartementencomplex gelegen. Ook natuurgebieden zoals “Het Binnenveld” is op korte afstand waar u heerlijk kunt wandelen of een mooie fietstocht kunt maken. Het centrum van Wageningen ligt op zo’n 10 minuten fietsen. Gunstige ligging ten opzichte van uitvalswegen A12 en A50.

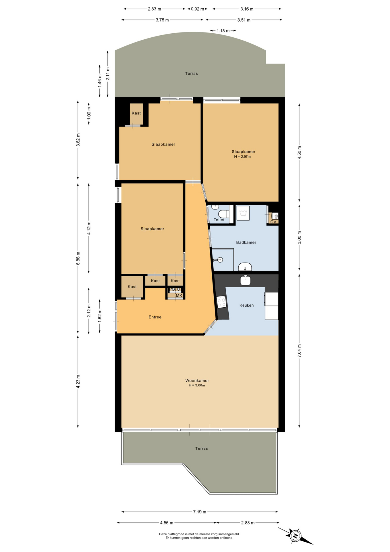
Indeling: Entree, hal met garderobe-nis, meterkast, provisiekast, ruime lichte woonkamer met grote raampartijen wat zorgt voor veel daglichtinval en een deur naar het ruime terras gesitueerd op het oosten, dat een fraai uitzicht biedt over de waterpartij aan de voorzijde van het complex. De moderne lichte open keuken met composiet aanrechtblad is uitgevoerd in een U-opstelling en voorzien van diverse inbouwapparatuur te weten; een inductie kookplaat, koel-vriescombinatie, hete luchtoven. Terug vanuit de hal toegang tot de toiletruimte tot het plafond betegeld met wandcloset en fonteintje, drie grote slaapkamers waarvan twee slaapkamers met inbouwkasten en opbergruimte in het plafond en één slaapkamer met een inbouwkast en deur naar terras op het westen, een royale badkamer voorzien van douchehoek met glazen deur, vaste wastafel, designradiator en aansluiting voor de was apparatuur.
.
Bijzonderheden:
– Gelegen op een goede locatie met uitzicht over een waterpartij;
– 3 grote slaapkamers;
– Hoog plafond circa 3 meter;
– Glasvezel aanwezig;
– Voorzien van airco;
– Gehele voorgevel voorzien van glas waardoor veel lichtinval;
– Een ruim terras met elektrische zonwering;
– Verwarming en warm water middels C.V.- combiketel Remeha Avanta HR, bouwjaar 2010;
– Het gezellige stadscentrum van Wageningen bevindt zich op ca. 10 fietsminuten;
– Servicekosten bedragen momenteel € 177,= per maand;
– Diverse voorzieningen aanwezig in de nabije omgeving, zoals basisonderwijs, kinderopvang, sportaccommodatie,
kleinschalig winkelcentrum en bushalte;
– Zowel voor als achter een terras.

Kenmerken

Overdracht

  • Status Verkocht onder voorbehoud
  • Vraagprijs € 475.000,- Kosten koper
  • Aanvaarding In overleg

Bouwvorm & Onderhoud

  • Soort bouw Bestaande bouw
  • Bouwjaar 1994
  • Soort dak Plat dak
  • Onderhoud binnen Goed tot uitstekend
  • Onderhoud buiten Goed tot uitstekend

Oppervlakten & inhoud

  • Gebruiksoppervlakte wonen ca. 108 m2
  • Oppervlakte gebouwgebonden ca. 16m2
  • Externe bergruimte ca. 8m2
  • Inhoud ca. 408m3

Indeling

  • Aantal slaapkamers 3
  • Aantal badkamers 1 badkamer
  • Badkamervoorzieningen Douche, wastafel, wasmachineaansluiting
  • Aantal woonlagen 1 woonlagen
  • Voorzieningen Mechanische ventilatie, rolluiken, tv kabel, airconditioning, glasvezel kabel

Energie & Installatie

  • Energielabel B
  • Isolatie Dakisolatie, muurisolatie, vloerisolatie, dubbel glas
  • Verwarming Cv ketel
  • Warm water Cv ketel
  • C.v.-ketel type Gas
  • C.v.-ketel bouwjaar 2010
  • Eigendom Eigendom

Tuin & Buitenruimte

  • Ligging Aan water, aan park, in woonwijk
  • Hoofdtuin Zonneterras
  • Oppervlakte hoofdtuin ca. 18m2
  • Ligging hoofdtuin West
  • Kwaliteit tuin Verzorgd

Bergruimte

  • Schuur / berging Inpandig
  • Voorzieningen Voorzien van elektra

Parkeergelegenheid

  • Parkeerfaciliteiten Openbaar parkeren, op eigen terrein
  • Garage Geen garage
Jeltes ten Hoor

Weet je wat je huidige woning waard is?

Vraag gratis en vrijblijvend een waardebepaling aan.

Waardebepaling aanvragen

Wij staan voor u klaar!

Meer weten over onze verkoopservice? Wij zijn altijd goed bereikbaar!

Contact opnemen logo-clear