Hogerhorst 77, Ede - Jeltes ten Hoor
Jeltes ten Hoor Jeltes ten Hoor

Omschrijving

Deze drive-in-woning heeft heerlijk vrij uitzicht aan de voorzijde en is gelegen in de wijk Veldhuizen en heeft volop ruimte zodat het heerlijk wonen is met een gezin. Op de begane grond bevindt zich een inpandige garage en een mooie tuinkamer die tevens als slaapkamer dienst kan doen; op de 1e verdieping bevinden zich de living, toiletruimte en de woon-/eetkeuken. Op de 2e verdieping bevinden zich drie ruime slaapkamers…

Lees meer

Kenmerken

  • Soort woning Eengezinswoning
  • Type woning Tussenwoning
  • Bouwjaar 1970
  • Bouwvorm Bestaande bouw
  • Woonoppervlakte ca. 123 m2
Meer kenmerken

Plattegronden

Omschrijving

Deze drive-in-woning heeft heerlijk vrij uitzicht aan de voorzijde en is gelegen in de wijk Veldhuizen en heeft volop ruimte zodat het heerlijk wonen is met een gezin. Op de begane grond bevindt zich een inpandige garage en een mooie tuinkamer die tevens als slaapkamer dienst kan doen; op de 1e verdieping bevinden zich de living, toiletruimte en de woon-/eetkeuken. Op de 2e verdieping bevinden zich drie ruime slaapkamers en de badkamer. De woning is voorzien van 10 zonnepanelen en een isolerend werkend sedumdak!

De wijk Veldhuizen is een leuke plek om te wonen en voor kinderen om op te groeien. Alle dagelijkse voorzieningen zijn in de buurt zoals meerdere supermarkten, winkels, scholen, kinderopvang en goede openbaar vervoersverbindingen zijn op loopafstand (je hoeft er zelfs niet eens voor op de fiets). De wijk is ruim opgezet, heeft veel openbaar groen en kent veelal bestemmingsverkeer.

Indeling:
Begane grond:
Overdekte entree; gang; meterkast; garderobe-nis; tuinkamer/slaapkamer met inbouwkast en toegang tot de tuin; inpandige ruime garage met aansluiting voor de was-apparatuur.

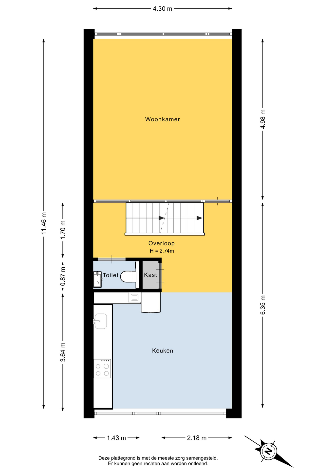
1e verdieping:
Overloop; toiletruimte met hangend closet en fontein; aan de voorzijde bevindt zich de woon-/eetkeuken in L-vormige opstelling geplaatst en voorzien van vaatwasser, inductiekookplaat met afzuigkap en voorraadkast; aan de heerlijk rustige achterzijde is de royale living gelegen. De woonkamer en de keuken worden gescheiden door een overloop met een mooi open trappenhuis en glazen wanden zodat er heel veel licht in beide ruimtes binnenkomt.

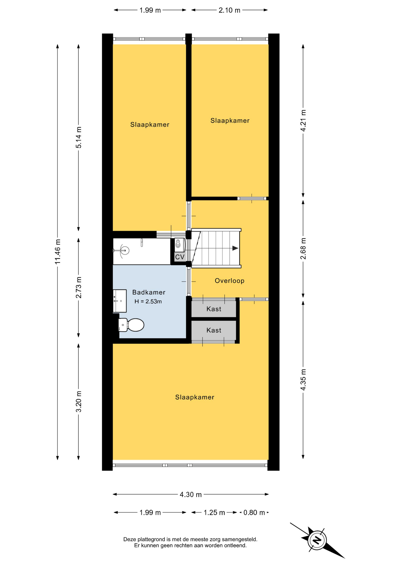
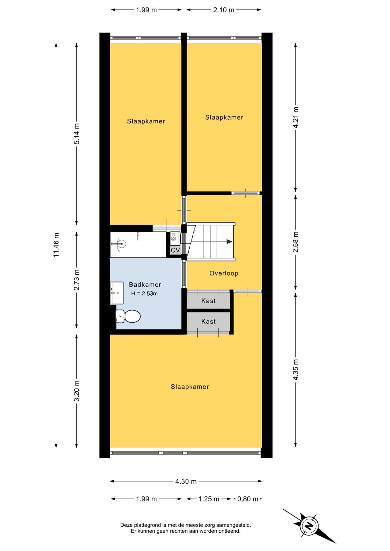
2e verdieping:
Overloop met kast; slaapkamer I; slaapkamer II; slaapkamer III met inbouwkast; badkamer (oorspronkelijk) voorzien van ligbad, wastafel en toilet. Opstelling mechanische ventilatie en C.V.-ketel.

Bijzonderheden:
– Vrij uitzicht aan de voorzijde;
– Heerlijk rustige achterzijde;
– Parkeren op de oprit, de oprit en de groenstrook zijn van de Gemeente en worden onderhouden door de eigenaar/bewoner van de woningen;
– Achtertuin gelegen op het zuidwesten;
– Meterkast met 11 groepen en 3 aardlekschakelaars;
– De meterkast is voorbereid op een eigen laadpaal voor een elektrische auto;
– C.V.-combiketel, Vaillant HR uit februari 2022;
– Tuinkamer/slaapkamer op begane grond voorzien van kunststof kozijnen met HR++ glas;
– 1e verdieping voorzien van dubbel glas;
– Slaapkamer I en II zijn voorzien van kunststof kozijnen met HR++ glas;
– Slaapkamer III heeft dubbel/deels HR++;
– Zonwering aan de achterzijde op de 1e en 2e verdieping en op de 2e verdieping tevens aan de voorzijde;
– dakbedekking vervangen in juli 2021 in combinatie met een sedum dak;
– 10 zonnepanelen van 400 Watt;
– Energielabel A.

Kenmerken

Overdracht

  • Status Onder voorbehoud verkocht
  • Vraagprijs € 415.000,- Kosten koper
  • Aanvaarding In overleg

Bouwvorm & Onderhoud

  • Soort woonhuis Tussenwoning
  • Soort bouw Bestaande bouw
  • Bouwjaar 1970
  • Soort dak Plat dak
  • Onderhoud binnen Goed
  • Onderhoud buiten Goed

Oppervlakten & inhoud

  • Gebruiksoppervlakte wonen ca. 123 m2
  • Oppervlakte gebouwgebonden ca. 7m2
  • Externe bergruimte ca. 3m2
  • Overige inpandige ruimte ca. 18m2
  • Inhoud ca. 483m3
  • Perceeloppervlakte ca. 111m2

Indeling

  • Aantal slaapkamers 4
  • Aantal badkamers 1 badkamer
  • Badkamervoorzieningen Ligbad, toilet, wastafel
  • Aantal woonlagen 3 woonlagen
  • Voorzieningen Mechanische ventilatie, buitenzonwering, glasvezel kabel, zonnepanelen

Energie & Installatie

  • Energielabel A
  • Isolatie Dakisolatie, muurisolatie, dubbel glas, hr glas
  • Verwarming Cv ketel
  • Warm water Cv ketel
  • C.v.-ketel type Gas
  • C.v.-ketel bouwjaar 2022
  • Eigendom Eigendom

Tuin & Buitenruimte

  • Ligging Aan rustige weg, in woonwijk
  • Hoofdtuin Achtertuin
  • Oppervlakte hoofdtuin ca. 39m2
  • Ligging hoofdtuin Zuidwest
  • Kwaliteit tuin Verzorgd

Bergruimte

  • Schuur / berging Vrijstaand kunststof
  • Aantal schuren / bergingen 1

Parkeergelegenheid

  • Parkeerfaciliteiten Openbaar parkeren, op eigen terrein
  • Garage Inpandig
Jeltes ten Hoor

Weet je wat je huidige woning waard is?

Vraag gratis en vrijblijvend een waardebepaling aan.

Waardebepaling aanvragen

Wij staan voor u klaar!

Meer weten over onze verkoopservice? Wij zijn altijd goed bereikbaar!

Contact opnemen logo-clear