Sportstraat 18, Wageningen - Jeltes ten Hoor
Jeltes ten Hoor Jeltes ten Hoor

Omschrijving

Beleggers opgelet!!

Aan de Sportstraat, nabij het stadscentrum van Wageningen gelegen, geheel verhuurde, twee-onder- één kap woning met een netto huuropbrengst van ca. € 40.000,= per jaar. Het pand wordt bewoond door studenten.

Deze woning ligt in een rustige straat, op loopafstand van het centrum van Wageningen en faciliteiten als supermarkten, scholen en openbaar vervoer.

Indeling:

Begane…

Lees meer

Kenmerken

  • Soort woning Eengezinswoning
  • Type woning Twee onder een kapwoning
  • Bouwjaar 1900
  • Bouwvorm Bestaande bouw
  • Woonoppervlakte ca. 269 m2
Meer kenmerken

Plattegronden

Omschrijving

Beleggers opgelet!!

Aan de Sportstraat, nabij het stadscentrum van Wageningen gelegen, geheel verhuurde, twee-onder- één kap woning met een netto huuropbrengst van ca. € 40.000,= per jaar. Het pand wordt bewoond door studenten.

Deze woning ligt in een rustige straat, op loopafstand van het centrum van Wageningen en faciliteiten als supermarkten, scholen en openbaar vervoer.

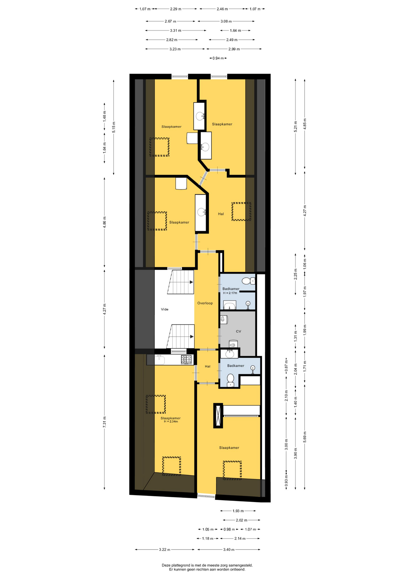
Indeling:

Begane grond: Entree, gang, 3 studentenkamers waarvan 1 met wastafel warm- en koud water, keuken met koelkast en 1 badkamer met douche, wastafel en toilet.

Hal met trapopgang gastentoilet met fonteintje, ruimte wasmachine en meterkast.

Verdieping voorzijde: 2 studentenkamers met keukens, kookplaten en koelkasten, 1 badkamer met douche, wastafel en toilet.

Verdieping achterzijde: 3 studentenkamers met aanrechtblokken, kookplaten, koelkast en 1 gezamenlijke woonkamer, 1 badkamer met douche, wastafel en toilet.

Appartement begane grond achter met tuin, woonkamer, slaapkamer, keuken, badkamer met douche, wastafel en toilet.

Diverse:
– Totaal 8 studentenkamers met 3 badkamers, 1 appartement;
– In de achtertuin is 1 overkapping voor fietsen en 1 berging;
– Energielabel D;
– Aanvaarding in overleg.

Kenmerken

Overdracht

  • Status Verkocht onder voorbehoud
  • Vraagprijs € 595.000,- Kosten koper
  • Aanvaarding In overleg

Bouwvorm & Onderhoud

  • Soort woonhuis Twee onder een kapwoning
  • Soort bouw Bestaande bouw
  • Bouwjaar 1900
  • Soort dak Schilddak
  • Onderhoud binnen Redelijk tot goed
  • Onderhoud buiten Redelijk tot goed

Oppervlakten & inhoud

  • Gebruiksoppervlakte wonen ca. 269 m2
  • Oppervlakte gebouwgebonden ca. 3m2
  • Inhoud ca. 1075m3
  • Perceeloppervlakte ca. 265m2

Indeling

  • Aantal slaapkamers 9
  • Aantal badkamers 4 badkamers
  • Badkamervoorzieningen Toilet, douche, wastafel, toilet, douche, wastafel, toilet, douche, wastafel, toilet, douche, wastafel
  • Aantal woonlagen 2 woonlagen
  • Voorzieningen Dakraam, natuurlijke ventilatie

Energie & Installatie

  • Energielabel D
  • Isolatie Dakisolatie, muurisolatie, dubbel glas
  • Verwarming Cv ketel
  • Warm water Cv ketel
  • C.v.-ketel type Gas
  • Eigendom Eigendom

Tuin & Buitenruimte

  • Ligging Aan rustige weg, in woonwijk
  • Hoofdtuin Achtertuin
  • Oppervlakte hoofdtuin ca. 71m2
  • Ligging hoofdtuin Noord
  • Achterom 1
  • Kwaliteit tuin Normaal

Bergruimte

Parkeergelegenheid

  • Parkeerfaciliteiten Openbaar parkeren
  • Garage Geen garage
Jeltes ten Hoor

Weet je wat je huidige woning waard is?

Vraag gratis en vrijblijvend een waardebepaling aan.

Waardebepaling aanvragen

Wij staan voor u klaar!

Meer weten over onze verkoopservice? Wij zijn altijd goed bereikbaar!

Contact opnemen logo-clear